Používame cookies

Používaním týchto stránok súhlasíte s používaním cookies, ktoré nám pomáhajú zabezpečiť lepšie služby. Viac info

SUPER CENA : 9 izbový mezonetový byt na Príkopovej ulici v Bratislave - Nové mesto

690 000 €
320 m2
5 a viac izbový byt
Ulica: Príkopova
Obec: Bratislava-Nové Mesto
Okres: Bratislava III
Kraj: Bratislavský kraj
Druh: Byty
Typ: Predaj
Kategória: 5 a viac izbový byt
Plocha: 320 m2

POPIS NEHNUTEĽNOSTI

Realitná kancelária PEGAS REAL Vám exkluzívne ponúka na predaj  veľkometrážny 9 izbový mezonetový byt vo vyhľadávanej časti mesta Bratislavy v Novom meste na Príkopovej ulici. Byt v zateplenom tehlovom dom s výťahom má rozlohu 320m2 a jeho súčasťou je aj krb v priestrannej obývacej časti, ktorá je spojená s kuchynskou a jedálenskou časťou. Poschodie je dostupné vďaka dvom schodiskám. 

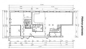
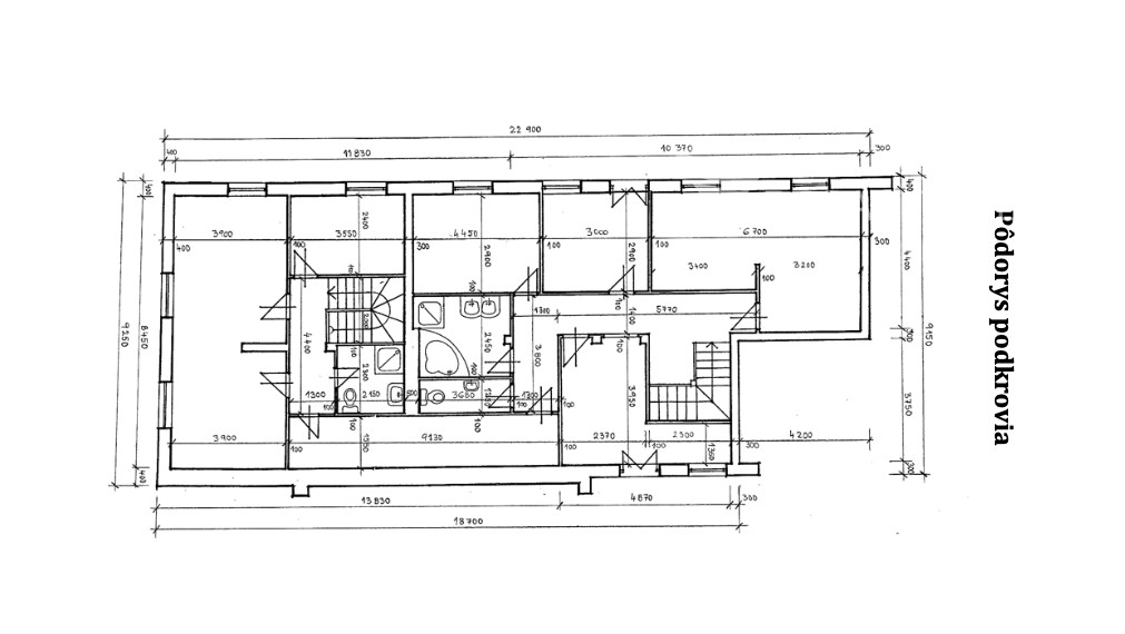
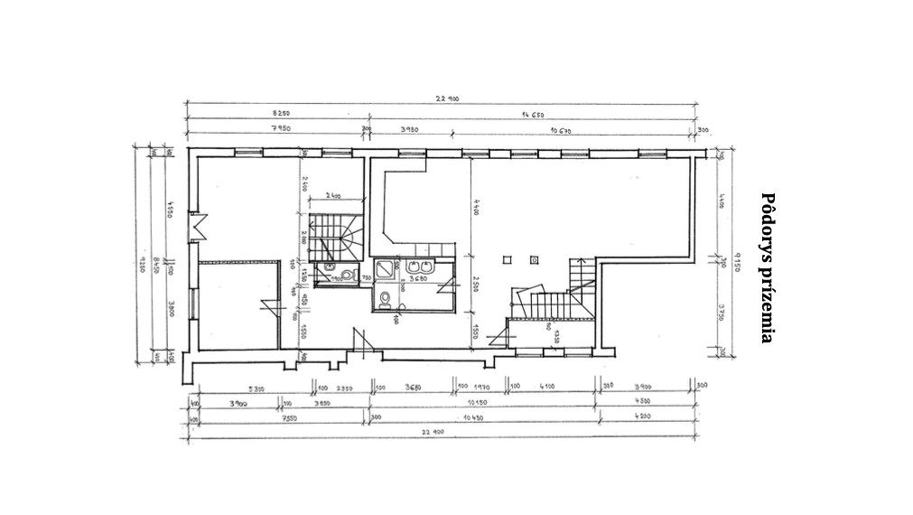
Dispozícia
1NP
-obývacia časť spojená kuchyňou a jedálenskou časťou
-pracovňa
-spoločenská miestnosť s barovým pultom
-fajčiarsky salónik s výhľadom
-kúpeľňa

2NP
-5 samostatných izieb
-priestranný šatník
-žehliareň so sušiarňou
-2x kúpeľňa

VÝHODY
-veľká rozloha bytu
-kompletná občianska vybavenosť /obchody, banky, športoviská, zdravotné stredisko/
-samostatné kúrenie a ohrev vody prostredníctvom plynového kotla /termostat/
-klimatizácia
-výhľad na Malé Karpaty
-dispozícia
-vonkajšie parkovacie miesto
-možnosť prestavby na 2 samostatné byty
-investicía

Bližšie informácie Vám radi poskytneme pri osobnej obhliadke

Kontakt: Michal Hulík,RSc.
Mobil: 0948 744 099
Mail: michal.hulik@pegasreal.sk
Cena: 690.000,- Eur

DOPLŇUJÚCE INFORMÁCIE

Status:
aktívne
Vlastníctvo:
osobné
Stav:
čiastočne prerobený
Celková plocha:
320 m2
Úžitková plocha:
320 m2
Poschodie:
5
Počet podlaží:
6
Počet izieb:
9
Balkón:
nie
Počet kúpeľní:
2
Výťah:
áno
Klimatizácia:
áno
Parkovanie:
vlastné vyhradené
Zariadenie:
nezariadený
Inžinierske siete:
áno
Internet:
áno - káblový rozvod
Materiál:
tehla
Zateplený objekt:
áno
Terasa:
nie
Vykurovanie:
vlastné

Hypotekárna kalkulačka

Lokalita IDEÁLNE MIESTO NA BÝVANIE

Kontaktný formulár RADI VÁM POVIEME VIAC

Nenašli ste tú pravú nehnuteľnosť? PODOBNÉ NEHNUTEĽNOSTI