
Ulica: | Mýtna |
---|---|
Obec: | Bratislava-Staré Mesto |
Okres: | Bratislava I |
Kraj: | Bratislavský kraj |
---|---|
Druh: | Priestory |
Typ: | Prenájom |
Kategória: | Kancelárske priestory |
---|---|
Plocha: | 204 m2 |
Výborná lokalita:
-centrum Bratislavy, pešia dostupnosť MHD, občianskej vybavenosti a Starého Mesta
Moderný vzhľad a vybavenie:
-klimatizácia, osvetlenie, štruktúrovaná kabeláž, kvalitný kancelársky nábytok
Dobrá kondícia budovy:
-udržiavaná administratívna budova so zníženým prízemím, 2 výťahmi, recepciou a bezpečnostným systémom
Komfort pre zamestnancov:
-kuchynka, samostatné dámske a pánske toalety, veľká slnečná terasa pre oddych či neformálne stretnutia
Flexibilita:
-celé poschodie rozdelené na 2 samostatné časti s viacerými kanceláriami rôznych veľkostí
-v prípade potreby je možné priestor dispozične zmeniť podľa potrieb klienta
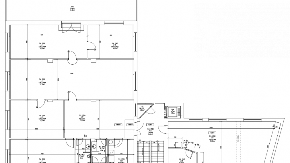
Dispozícia a plocha
-celkové 3. poschodie: 363,65 m² vrátane terasy
-kancelárie od 18 m² do 57 m²
-recepcia (30,65 m²)
-serverovňa
-kuchynka
-toalety (muži/ženy)
-terasa (61,8 m²) + balkón
Technické vybavenie
-klimatizácia
-štruktúrovaná kabeláž
-osvetlenie
-projektor
-samostatný merač elektriny
-možnosť ponechať kvalitný kancelársky nábytok
Budova:
-4-podlažná moderná administratívna budova
-2 výťahy (osobný a nákladný s nosnosťou 540 kg)
-kamerový systém napojený na PCO
-24/7 prístup cez čipový systém a elektrického vrátnika
Lokalita
-Mýtna ulica – prestížna adresa v širšom centre Bratislavy:
-okamžitá dostupnosť MHD (električky, autobusy)
-pešia dostupnosť do historického centra
-kompletná občianska vybavenosť v okolí (reštaurácie, kaviarne, banky, úrady)
VIDEO
https://www.youtube.com/watch?v=7qUKWfHiBlY
Bližšie informácie Vám radi poskytneme pri osobnej prehliadke
Kontakt: Michal Hulík, RSc. - realitný maklér – Pegas Real
Mobil: +421 948 744 099
Mail: michal.hulik@pegasreal.sk
Cena: od 10,-Eur/m2 + DPH + energie