Používame cookies

Používaním týchto stránok súhlasíte s používaním cookies, ktoré nám pomáhajú zabezpečiť lepšie služby. Viac info

**REZERVOVANÝ** Slnečný, kompletne zariadený 3-izbový byt s balkónom v Cubicon Gardens

309 700 €
70.9 m2
3-izbový byt
Obec: Bratislava-Karlova Ves
Okres: Bratislava IV
Kraj: Bratislavský kraj
Druh: Byty
Typ: Predaj
Kategória: 3-izbový byt
Plocha: 70.9 m2

POPIS NEHNUTEĽNOSTI

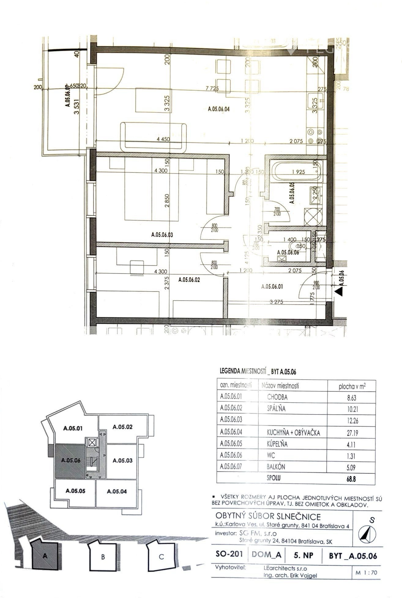
Realitná kancelária Pegas Real Vám exkluzívne ponúka na predaj kompletne zariadený 3-izbový byt v novostavbe vyhľadávaného rezidenčného projektu Cubicon Gardens v mestskej časti Bratislava – Karlova Ves na ul. Rudolfa Mocka. Byty sa vyznačujú slušným štandardom. Príjemne pôsobia najmä vysoké okná s francúzskymi balkónmi s elektricky ovládanými vonkajšími žalúziami, drevené parkety, či kvalitné dyhované interiérové dvere. Predávaný byt je západnej orientácie situovaný v prvej Slnečnici na 5/8 poschodí. Bytový dom je súčasťou záhradného komplexu s uzavretým vnútroblokom s oddychovou zónou a detským ihriskom, ktorý má pravidelne udržiavaný interiér aj exteriér, skvelého správcu a prístupný areál na šport, relax i zábavu. K bytu prislúcha veľká pivničná kobka v suteréne domu a na parkovanie je možnosť prikúpenia vonkajšieho parkovacieho státia priamo od developera.

BYT
3-izbový byt 70,90 m2 z toho
- pivničná kobka 2,10 m2
- balkón 5,09 m2

VÝHODY
príjemná tichá lokalita
jedinečný komplex so súkromným areálom
blízkosť zelene a lesoparku Sitina
jednoduchá dostupnosť autom aj verejnou dopravou
kompletná občianska vybavenosť
nízke mesačné náklady 143 eur/2 os.
dostatok úložného priestoru
kompletne zariadený
kúpou voľný

DISPOZIČNÉ RIEŠENIE BYTU
vstupná predsieň so úložným priestorom
obývačka s jedálnym kútom spojená s kuchyňou
spálňa s manželskou posteľou
detská izba
vstup na balkón z obývačky
kúpeľňa s vaňou a rebrovým radiátorom
samostatná toaleta s umývadlom

LOKALITA
Cubicon Gardens sú komplexná urbanistická zelená štvrť vo výnimočnej zelenej lokalite a zároveň blízko centra. Kombinujú aktívne rodinné bývanie s bohatým priestorom, kompletnou vybavenosťou v pešej dostupnosti a pohodlnou dopravou do centra. Vyrástli v blízkosti prírody a pritom v kontakte s mestom. Svojim obyvateľom poskytujú pohodlie v nadštandardne vybavených bytoch a zároveň priestor pre príjemné susedské spolunažívanie. Výlety do prírody uľahčí nová cyklotrasa s peším chodníkom, ktorá spája štvrť priamo s malokarpatskými lesmi. Súčasťou uzatvoreného areálu je detské ihrisko, zelená promenáda, či basketbalové multifunkčné ihrisko, kde si môžete zašportovať alebo sa len tak poprechádzať.

Link na video: https://youtu.be/DGYWXQ7J-mk

Neváhajte a dohodnite si obhliadku najlepšie ihneď.

Kontakt: Alica Vojčeková, RSc.
Mobil: 0911 884 491
Cena: 309.700,- EUR vrátane pivničnej kobky a kompletného sprostredkovateľského servisu

Naša realitná kancelária poskytuje kompletný právny a poradenský servis, zabezpečenie znalca, prípravu zmlúv a dokladov na katastrálny úrad, úhradu notárskych poplatkov a základných poplatkov na kataster, služby finančného poradcu.

Upozornenie: text a fotografie použité v tomto inzeráte podliehajú ochrane podľa autorského práva a nesmú byť kopírované, rozmnožované a šírené v celku alebo po častiach bez predchádzajúceho písomného súhlasu zadávateľa inzerátu.

DOPLŇUJÚCE INFORMÁCIE

Status:
aktívne
Vlastníctvo:
osobné
Úžitková plocha:
70.9 m2
Podlahová plocha:
70.9 m2
Stav:
novostavba
Počet izieb:
3
Energetický certifikát:
B
Typ budovy:
zmiešané
Typ výbavy:
kompletne vybavený
Balkón:
áno
Pivnica:
áno
Výťah:
áno
Rok kolaudácie:
2016
Počet poschodí od prízemia vyššie:
8
Pozícia:
vyššie poschodie
Poschodie:
5
Celková plocha:
70.9 m2
Plocha balkóna:
5.09 m2
Počet balkónov:
1
Pivnica plocha:
2.1 m2
Počet pivníc:
1
Orientácia:
západ
Vykurovanie - centrálne:
áno

Hypotekárna kalkulačka

Lokalita IDEÁLNE MIESTO NA BÝVANIE

Kontaktný formulár RADI VÁM POVIEME VIAC

Nenašli ste tú pravú nehnuteľnosť? PODOBNÉ NEHNUTEĽNOSTI